Офис в Деловом Центре NEVKA

2025

о проекте

Локация: Санкт-Петербург

Площадь: 300 м²

Статус: реализован

Дизайнеры: Алина Попова, Давид Асланян

Проектировщик: Татьяна Стрельцова

Арт-директор: Руслан Карабалин

Фотограф: Андрей Семёнов

Офис в Деловом Центре NEVKA

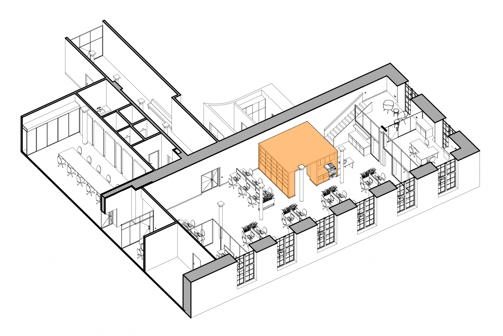
Офис спроектирован в стиле «лофт», который подчёркивает связь внутреннего пространства с внешним образом исторического здания Делового Центра NEVKA.

Основной зоной офиса является просторный опенспейс. Это достаточно гибкое пространство для последующих трансформаций под нужды компании.

В офисе также спроектирован антресольный этаж, где располагается кабинет руководителя с приёмной зоной. Из кабинета открывается вид сверху на рабочие места сотрудников в «лучших традициях» производственного цеха начала XX века.

В офисе предусмотрены малая переговорная комната и конференц-зал со звукопоглощающими панелями и специальной системой вентиляции.

Конференц-зал имеет функцию трансформации под разные сценарии деловых мероприятий.

На нашем сайте используются cookie-файлы, в том числе с использованием сервиса веб-аналитики Яндекс.Метрика. Используя сайт, вы соглашаетесь на обработку персональных данных при помощи cookie-файлов. Подробнее об обработке персональных данных вы можете узнать в Политике